C:UsersTomeuARQUITECTURA13_cornellà_habitatge públic4_DWGSocial housing in Cornellà de Llobregat

Location: Cornellà de Llobregat, Catalonia
CLIENT: Institut Metropolità del Sòl – Barcelona Metropolitan Area
Date: 2017
Status: Competition. 2nd phase
Budget: – €
Area: 8.299 m2
ARCHITECTURE: TOMEU DURAN 
SOCIOLOGY: CARLES F. BAEZA
STRUCTURAL ARCHITECTS: DIMArk

SITE

The architectural, urban and sociological environment of Sant Idelfons neighborhood in Cornellà de Llobregat is an example of the characteristic housing estate of the XX century’s 50-70’s decades, in which the dimensions of housing solutions are marked by a very dense distribution with a high intensive use of its inhabitants. These are the main conditions of the Pisa cinema surroundings.

PROPOSAL

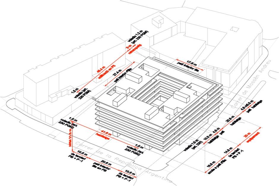
The natural thermoregulation of both the building in general and the dwellings in particular, has been a priority in the design of the building. Among all the variables that influence the environmental quality and the energy efficiency of a building, the only one that it is invariable is its position and orientation with respect to the Sun. For this reason, and based on the specific regulation that regulates the volumetricity of the future building, two 4.8-meter-wide cuts are executed in the East-West direction of the block, dividing the volume into four related parts. In this way, 75% of the dwellings will have three façades, having almost all of them at least one oriented to South.
The cuts in the building will also allow its permeability to the surroundings (physically and climatologically), and the circulation and renovation of the air, oxygenating it visually, volumetrically and environmentally. In addition to the aforementioned cuts, a sheet of water will be found inside the courtyard as a Roman impluvium or a mound-building termites: the outer air that goes through the building at different heights is humidifyed and thermoregulated with water, generating a chimney effect which will facilitate the cross-ventilation of all appartments.
Although the specific regulation raises an enclosed block with a built depth of 13 meters, corresponding to 11 m of housing and 1,5-2 m of terraces, the proposed building will be projected outwards in all its perimeter with terraces of 1.5 meters wide. Moreover, the dwelling section reduces its depth in 0.5 meters. This will also allow to extend terraces inside the patio, while allowing to increase the courtyard width in 1 meter per side.
These terraces will protect the facade of direct sunlight at noon and/or summer, allowing light and warmth to reach the interior of homes when the sun goes lower (autumn/winter, morning and evening). A shade structure in each appartment terrace will generate a thermal, lumininous and spatial diaphragm between the interior and exterior. This space will work at the same time as an extension of the dining-living room and the kitchen, as well as an outside living room, facilitating the relationship of the residents of the building with the public space. This shade structure will be generated backwarding the façade, separating the enclousing elements (glass) from the sun protection element (shutter). Thus we get an outdoor interior (‘Un interior a l’aire lliure’).
The interior distribution of the appartments has also been thought from the point of view of its orientation and consequent environmental regulation. They all have the living room and the kitchen facing South or West, and the bedrooms towards North and East, respectively. The living room is a generous space of 30 m2 where the 6 potential inhabitants of the house can relate and develop their activities in common. Based on the premise that, historically and culturally, in the Mediterranean Sea the kitchen has been the center of everyday life at home, a privileged space has been designed in terms of its position in the dwelling. Set in South or West façade (depending on the appartment), the kitchen has a direct access to the terrace and to the shade structure. In addition, since it is dislocated with respect to the main space of the house, it has an open and independent relationship with it. Finally, their dimensions allow to develop comfortably life and daily tasks.
A storage band separates and connects the resting and privacy areas of those of activity and interrelation. Thus, this line of closets will also work as a thermal and spatial diaphragm between the two main orientations of the floors. The 10 m2 bedrooms, have been located in the fresh orientations of the building: East and North.
The position of the bathroom is based, on the one hand, to separate the entrance from the rest of the spaces, creating a filter between the staircase and the appartment and, on the other hand, to have a direct relationship between the same bathroom and the bedrooms. Its internal distribution optimizes dimensions by allowing the simultaneous use of 3 people. In addition, it has been placed nearby the kitchen, which will allow the facilities and supplies to be shared between these two spaces, which, at the same time, will be deployed parallel to the staircase.
Finally, these vertical communication cores (staircases, elevators and facilities) are shared every two dwellings per floor. This will mean the installation, in the entire building, of 6 elevators. Given that 70% of the houses are required to have 3 double rooms, each one of these elevators will serve more than 50 neighbors.

FURTHER INFORMATION

COMPETITION WEBSITE