Sistemes Operatius
ARCHITECTURE, CONSTRUCTION & URBANSCAPE
Menu
Skip to content
HOME
ARCHITECTURE
CONSTRUCTION MANAGEMENT
URBANSCAPE
TEAM
EXHIBITIONS
MEDIA
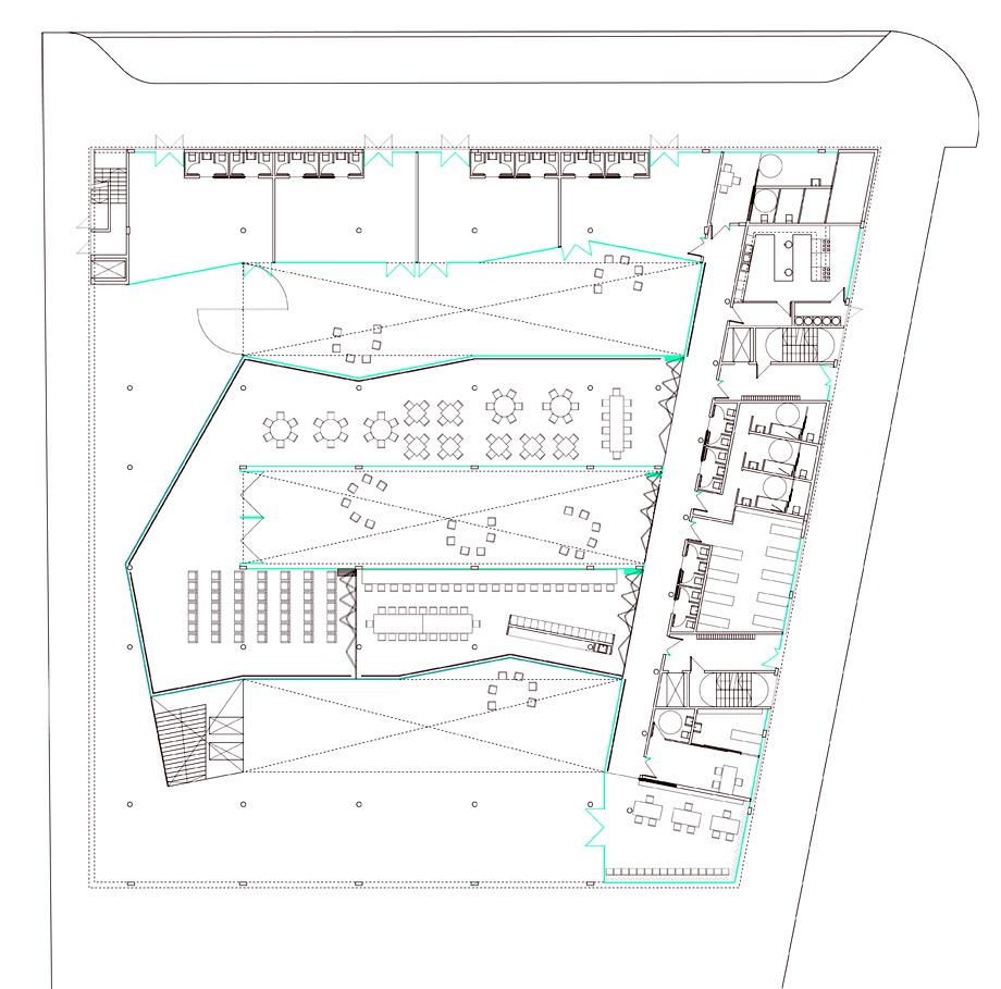
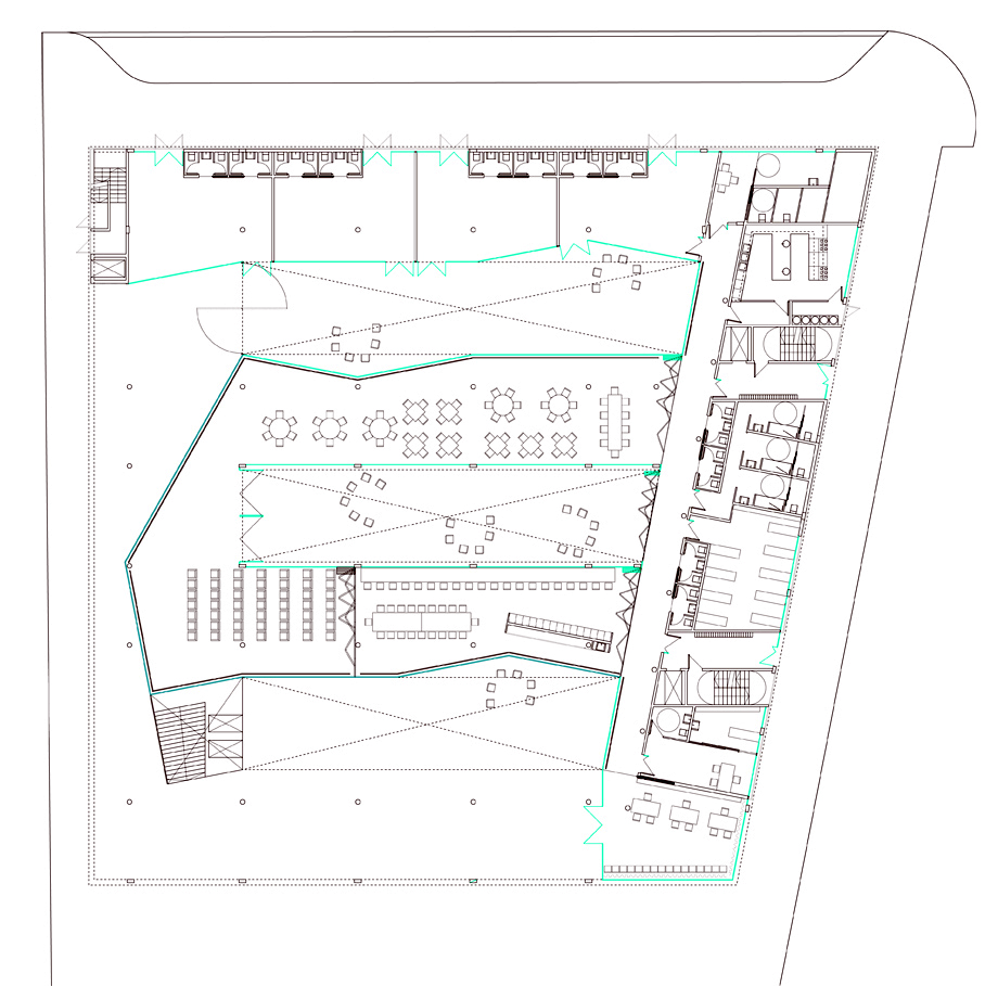
03_day care centre
Published
November 6, 2015
at
920 × 909
in
← Previous
Next →
Like
Loading...
Sistemes Operatius
Sign up
Log in
Copy shortlink
Report this content
Manage subscriptions
%d